KAPCSOLAT
IDŐPONTOT KÉREK
VISSZAHÍVÁST KÉREK
AJÁNLOM EGY ISMERŐSÖMNEK
MEGOSZTÁS
KAPCSOLATFELVÉTEL
Az üzenetet sikeresen elküldtük!
Hiba történt!
INGATLAN ADATAI
Ingatlan jellege
panellakás
Belső terület
67 m²
Építési állapot
új
Építési mód
- nem meghatározott -
Szobák száma
3 szoba
Emelet
1.
Ingatlan állapot
kívül: jó
belül: jó
Fűtés
egyéb
Komfort
komfort
Kilátás
utcára
HTML
PDF
Eladó új építésű panellakás
Belső azonosító:
9609
Ingatlan azonosító:
4901_dotimp
Komárom-Esztergom megye, Tata
Irányár
66.5 M Ft
Szobák
3 szoba
Emelet
1
Terület
67 m²
Telek terület
130 m²
INGATLAN LEÍRÁSA
ÚJ ÉPÍTÉSŰ, ENERGIATAKARÉKOS OTTHONOK TATÁN – SAJÁT KERTTEL, AUTÓBEÁLLÓVAL!
Korszerű, alacsony rezsijű, környezettudatos sorházi otthonok várják új tulajdonosukat Tata csendes, kertvárosias részén, pár percre az M1-es autópályától!
A projekt célja egy olyan élhető, kényelmes, családbarát otthon megteremtése, amely a mai energiatudatos elvárásoknak megfelelően, hőszivattyús fűtéssel, modern építőanyagokkal és minőségi kivitelezéssel készül – mindezt elérhető áron.
✔ Megújuló energiás fűtés – alacsony fenntartási költségek
✔ 2 szintes kialakítás, tágas belső terekkel
✔ Saját kertkapcsolat mindkét lakás esetében
✔ 2 hálószoba + nappali, ideális otthon pároknak, vagy kisebb családoknak
✔ Letisztult, modern építészeti megoldások
✔ Saját parkoló vásárolható
Átgondolt elosztás, élhető terek
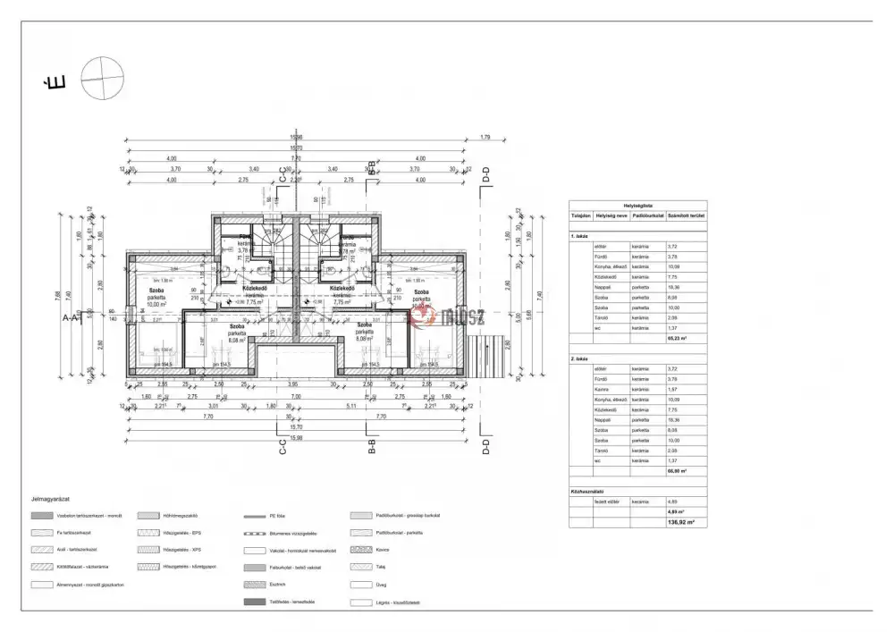
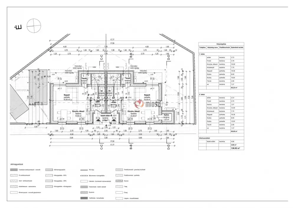
A lakások tervezése során a cél a komfort és funkcionalitás optimális egyensúlya volt.
A földszinten tágas, egybenyitott nappali–konyha–étkező funkcionál közösségi térként, míg az emelet a család privát zónája 2 különálló szobával és fürdővel.
Az alaprajzokon jól látható, hogy mindkét lakásban:
• nagy nappali (~18 m²)
• étkező–konyha (~10 m²)
• 2 hálószoba (8–10 m²)
• tároló, WC, előtér
került kialakításra.
Fedett bejárati előtér, autóbeálló és saját kertkapcsolat teszi komfortossá a mindennapokat.
Lakások paraméterei és árak
1. lakás
• 65 m² lakótér
• cca. 130 m² saját kert
• nappali + 2 hálószoba
• Vételár: 64.700.000 Ft (5% ÁFÁ-val)
• autóbeálló: 1.500.000 Ft
2. lakás
• 67 m² lakótér
• cca. 130 m² saját kert
• nappali + 2 hálószoba
• Vételár: 66.500.000 Ft (5% ÁFÁ-val)
• autóbeálló: 1.500.000 Ft
Modern homlokzat, esztétikus építészeti megoldások – a látványterveken is jól megfigyelhető.
Korszerű gépészet – alacsony energiafelhasználás
A fűtést és melegvíz-ellátást levegős hőszivattyús rendszer biztosítja, lakásonként önálló egységekkel.
Az épületben helyet kapott:
• hőszivattyú beltéri és kültéri egységek
• puffer tartály
• gépi szellőzés bizonyos helyiségekben
Műszaki átadás: 2026.12.30
Lakhatás támogatások – nálunk mindent elintézhet!
✔ CSOK PLUSZ 3%
✔ OTTHON START 3%
✔ Illetékmentesség
✔ Teljes körű, INGYENES hitel-ügyintézés
✔ Szerződés előkészítés
✔ Bankfüggetlen tanácsadás
Minden egy helyen, az Ön kényelme érdekében.
Kinek ajánljuk?
• pároknak
• kiscsaládosoknak
• azoknak, akik költséghatékony, modern, zöld otthont keresnek
• akik szeretnének kertet, de nem nagy fenntartású ingatlant
Ez a projekt valódi alternatíva a társasházi lakások és a magas fenntartású családi házak között!
Ne maradjon le – most még választhat burkolatot, szanitert, belső kialakítást!
Kérjen részletes információt, műszaki tartalmat, alaprajzot, látványtervet.
Szabó Szilvia
Tel.: 06 70 367 76 36
Korszerű, alacsony rezsijű, környezettudatos sorházi otthonok várják új tulajdonosukat Tata csendes, kertvárosias részén, pár percre az M1-es autópályától!
A projekt célja egy olyan élhető, kényelmes, családbarát otthon megteremtése, amely a mai energiatudatos elvárásoknak megfelelően, hőszivattyús fűtéssel, modern építőanyagokkal és minőségi kivitelezéssel készül – mindezt elérhető áron.
✔ Megújuló energiás fűtés – alacsony fenntartási költségek
✔ 2 szintes kialakítás, tágas belső terekkel
✔ Saját kertkapcsolat mindkét lakás esetében
✔ 2 hálószoba + nappali, ideális otthon pároknak, vagy kisebb családoknak
✔ Letisztult, modern építészeti megoldások
✔ Saját parkoló vásárolható
Átgondolt elosztás, élhető terek
A lakások tervezése során a cél a komfort és funkcionalitás optimális egyensúlya volt.
A földszinten tágas, egybenyitott nappali–konyha–étkező funkcionál közösségi térként, míg az emelet a család privát zónája 2 különálló szobával és fürdővel.
Az alaprajzokon jól látható, hogy mindkét lakásban:
• nagy nappali (~18 m²)
• étkező–konyha (~10 m²)
• 2 hálószoba (8–10 m²)
• tároló, WC, előtér
került kialakításra.
Fedett bejárati előtér, autóbeálló és saját kertkapcsolat teszi komfortossá a mindennapokat.
Lakások paraméterei és árak
1. lakás
• 65 m² lakótér
• cca. 130 m² saját kert
• nappali + 2 hálószoba
• Vételár: 64.700.000 Ft (5% ÁFÁ-val)
• autóbeálló: 1.500.000 Ft
2. lakás
• 67 m² lakótér
• cca. 130 m² saját kert
• nappali + 2 hálószoba
• Vételár: 66.500.000 Ft (5% ÁFÁ-val)
• autóbeálló: 1.500.000 Ft
Modern homlokzat, esztétikus építészeti megoldások – a látványterveken is jól megfigyelhető.
Korszerű gépészet – alacsony energiafelhasználás
A fűtést és melegvíz-ellátást levegős hőszivattyús rendszer biztosítja, lakásonként önálló egységekkel.
Az épületben helyet kapott:
• hőszivattyú beltéri és kültéri egységek
• puffer tartály
• gépi szellőzés bizonyos helyiségekben
Műszaki átadás: 2026.12.30
Lakhatás támogatások – nálunk mindent elintézhet!
✔ CSOK PLUSZ 3%
✔ OTTHON START 3%
✔ Illetékmentesség
✔ Teljes körű, INGYENES hitel-ügyintézés
✔ Szerződés előkészítés
✔ Bankfüggetlen tanácsadás
Minden egy helyen, az Ön kényelme érdekében.
Kinek ajánljuk?
• pároknak
• kiscsaládosoknak
• azoknak, akik költséghatékony, modern, zöld otthont keresnek
• akik szeretnének kertet, de nem nagy fenntartású ingatlant
Ez a projekt valódi alternatíva a társasházi lakások és a magas fenntartású családi házak között!
Ne maradjon le – most még választhat burkolatot, szanitert, belső kialakítást!
Kérjen részletes információt, műszaki tartalmat, alaprajzot, látványtervet.
Szabó Szilvia
Tel.: 06 70 367 76 36
INGATLAN ADATAI
Ingatlan jellege
panellakás
Belső terület
67 m²
Építési állapot
új
Építési mód
- nem meghatározott -
Szobák száma
3 szoba
Emelet
1.
Ingatlan állapot
kívül: jó
belül: jó
belül: jó
Fűtés
egyéb
Komfort
komfort
Kilátás
utcára
Energetika
TÉRKÉP
Komárom-Esztergom megye, Tata
Hitelkalkulátor
KAPCSOLAT
Szabó Szilvia
+36 70 367 7636
szabo.szilvi@dot-ing.hu
KAPCSOLAT
IDŐPONTOT KÉREK
VISSZAHÍVÁST KÉREK
AJÁNLOM EGY ISMERŐSÖMNEK
MEGOSZTÁS
KAPCSOLATFELVÉTEL
Az üzenetet sikeresen elküldtük!
Hiba történt!
INGATLAN ADATAI
Ingatlan jellege
panellakás
Belső terület
67 m²
Építési állapot
új
Építési mód
- nem meghatározott -
Szobák száma
3 szoba
Emelet
1.
Lift
nincs megadva
Ingatlan állapot
kívül: jó
belül: jó
Fűtés
egyéb
Komfort
komfort
Kilátás
utcára
Energetika
HTML
PDF