Kiadó ipari ingatlan - Tata

KAPCSOLAT
Szabó Gábor


+36 70 947

szabo.gabor@

Az időpont kérés naptár ikonja
IDŐPONTOT KÉREK
A visszahívás kérés telefon ikonja egy azt körbe ölelő nyíllal
VISSZAHÍVÁST KÉREK
Ajánlom egy ismerősömnek ikon
AJÁNLOM EGY ISMERŐSÖMNEK
Facebook megosztás ikon
MEGOSZTÁS

KAPCSOLATFELVÉTEL

Küldés

Az üzenetet sikeresen elküldtük!
Hiba történt!
INGATLAN ADATAI

Ingatlan jellege

ipari ingatlan

Belső terület

391 m²

Telek terület

600 m²

Építési mód

- nem meghatározott -

Ingatlan állapot

kívül: jó
belül: jó

Fűtés

központi fűtés

Komfort

komfort

Közműállapot

csatorna: bekötve
gáz: bekötve
villany: bekötve
víz: bekötve

Kilátás

utcára

Az időpont kérés naptár ikonja
HTML
Az időpont kérés naptár ikonja
PDF
Kiadó ipari ingatlan
Belső azonosító:
9780
Ingatlan azonosító:
5081_dotimp

Komárom-Esztergom megye, Tata

Bérleti díj

550 E Ft/hó

Szobák

0 szoba

Emelet

Terület

391 m²

Telek terület

600 m²
INGATLAN LEÍRÁSA
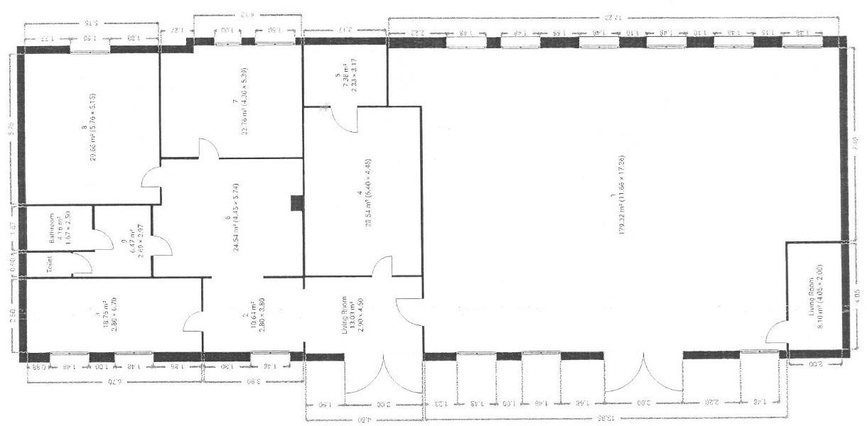
Tatán Ipari Övezetben Csarnok Kiadó

Az épület teljes területe 391 nm, melyből 180 négyzetméter a munkaterület, a többi részen irodák, öltözők, vizesblokkok találhatók:
Öltöző: 18,76 nm
Irodák (3db): 29,6 nm, 28,5 nm, 10,1 nm
Vizes blokk: 10 nm

Műszaki jellemzők:
Tégla épület, Nagy kapukkal
Nenon világítás
Villany: 3 X 240A
Tűzivíz van
Levegős rendszer kiépítve
Targoncázható: Belmagasság 3,65 m
Teherautóval megközelíthető
Fűtés: 2 db Klíma, Elektromos fűtés, Gáz fűtés
Belső zárt udvar, elktromos kapuval

Bérleti díj: 550.000,- Ft + ÁFA

INGATLAN ADATAI

Ingatlan jellege
ipari ingatlan
Belső terület
391 m²
Telek terület
600 m²
Építési mód
- nem meghatározott -
Ingatlan állapot
kívül: jó
belül: jó
Fűtés
központi fűtés
Komfort
komfort
Közműállapot
csatorna: bekötve
gáz: bekötve
villany: bekötve
víz: bekötve
Kilátás
utcára
Energetika
TÉRKÉP

Komárom-Esztergom megye, Tata

KAPCSOLAT
Szabó Gábor
Szabó Gábor


+36 70 947 5497

szabo.gabor@dot-ing.hu

KAPCSOLAT
Szabó Gábor

+36 70 947

szabo.gabor@

Az időpont kérés naptár ikonja
IDŐPONTOT KÉREK
A visszahívás kérés telefon ikonja egy azt körbe ölelő nyíllal
VISSZAHÍVÁST KÉREK
Ajánlom egy ismerősömnek ikon
AJÁNLOM EGY ISMERŐSÖMNEK
Facebook megosztás ikon
MEGOSZTÁS

KAPCSOLATFELVÉTEL

Küldés

Az üzenetet sikeresen elküldtük!
Hiba történt!
INGATLAN ADATAI

Ingatlan jellege

ipari ingatlan

Belső terület

391 m²

Telek terület

600 m²

Építési mód

- nem meghatározott -

Lift

nincs megadva

Ingatlan állapot

kívül: jó
belül: jó

Fűtés

központi fűtés

Komfort

komfort

Közműállapot

csatorna: bekötve
gáz: bekötve
villany: bekötve
víz: bekötve

Kilátás

utcára

Energetika

Az időpont kérés naptár ikonja
HTML
Az időpont kérés naptár ikonja
PDF
Komárom-Esztergom megye - Tata
Komárom-Esztergom megye - Tata